Vodoměrná šachta domovní VŠD - 1

Použití

Domovní vodoměrná šachta je určena k napojení vodovodní přípojky objektu k řadu tam, kde nelze vodoměr umístit přímo do budovy, nebo je-li místo napojení vodovodní přípojky do budovy vzdáleno od hranice nemovitosti více než 10 m. Je navržena v souladu s normou ČSN 755411 Vodovodní přípojky a slouží k osazení hlavního přípojkového uzávěru a vodoměru vč. dalšího manipulačního uzávěru. Šachta se umísťuje obvykle na neveřejném pozemku těsně u hranice s veřejným pozemkem.

Konstrukční řešení

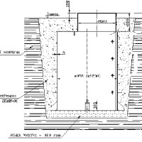
Vodoměrná šachta je svařena z PP desek o síle 5-15 mm. Rozměry nejprodávanější šachty jsou průměr 1000 x 1400 mm. Vstupní otvor 600 mm je opatřen 150 mm vysokým lemem a poklopem proti vnikání dešťové a povrchové vody. Uvnitř je šachta opatřena žebříčkem pro snadný sestup pro osazení vodoměru.Prostupy jsou opatřeny vodotěsnými spojkami,které usnadňují práci při připojování. Vnější stěny šachty jsou opatřeny límcy které vyztužují konstrukci která zabezpečují stabilitu šachty proti vztlaku spodní vody .

Osazení do terénu

Vodoměrná šachta se usazuje na vodorovnou betonovou desku. Po připojení vodovodní přípojky se provede obsyp pískem nebo betonem. Terénní úpravy se provádějí do výše lemu vstupního otvoru. V případě usazení šachty do míst s povrchovým namáháním je nutno konstrukci doplnit betonovým věncem, který se osadí příslušnými stavebními prvky dle míry zatížení, včetně litinového poklopu. V případě extrémně vysoké hladiny spodní vody je nutno šachtu ve vykopané jámě obetonovat a provést další doprovodná stavební opatření včetně zesílení a vyztužení na základě stavebně-statických výpočtů. Při osazení šachty v pojezdové dráze automobilů, nebo jinak více namáhané lokalitě je nutné postup usazení a typ obsypání konzultovat s výrobcem, případně se statikem

Výhody

delší životnost proti betonovým šachtám
zaručená vodotěsnost
snadná manipulace při transportu a instalaci
snadné osazení do výkopu bez nutnosti obetonování
minimální pořizovací náklady

Příklad objednávky

Vodoměrná šachta VŠD-1 s integrovaným prostupem pro potrubí Æ 32 - 50 mm a plastovým poklopem pochozím pro osazení do nezpevněné plochy s vyloučením pojezdu vozidel.

Dodací podmínky

Šachty se mohou dopravovat běžnými prostředky, musí však být zabezpečené proti posunu a poškození (upínací popruhy, atp.). Na zvláštní požadavek zákazníka zajistí dopravu na místo určení výrobce. Dodací lhůta je 3 týdny od závazného objednání (nebo dle dohody).

Záruka a servis

Záruční doba je 24 měsíců od převzetí zákazníkem. Opravy výrobku v záruční i pozáruční době zajištuje výrobce.

Dokumentace jakosti

Prohlášení výrobce o shodě dle Zák. č. 22/1997 Sb.